Caracteristici
- Tip terenTeren constructii
- Clasificare terenIntravilan
- Suprafata teren (m²)551
Descriere
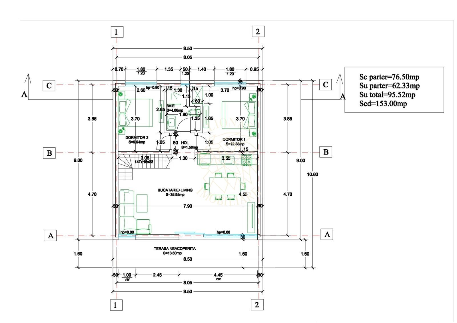
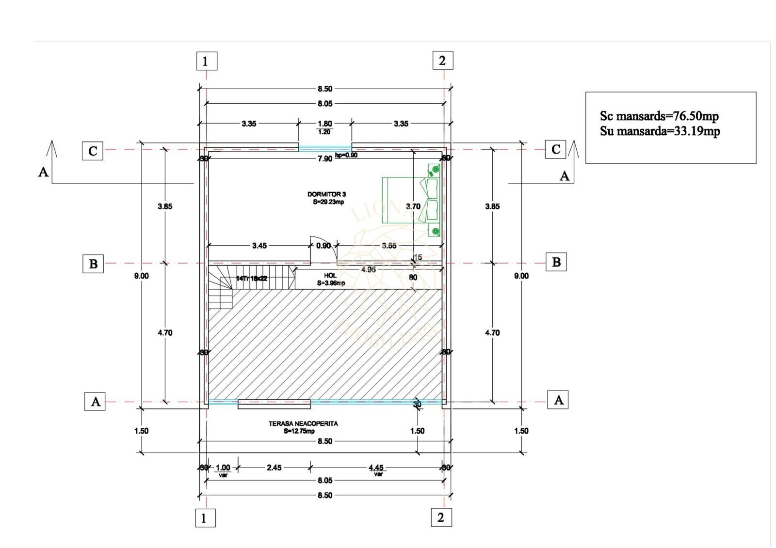
COMISION 0%! Va oferim spre vanzare un teren cu proiect autorizat de constructie cabana moderna ce face parte din Resortul montan de cabane- ALPINA 6 COLIBITA, cu panorama la lac in Colibita. Colibita reprezinta o oportunitate excelenta de investitie in turism, zona fiind cu potential in continua crestere pe tot parcursul anului, indiferent de sezon. - suprafata terenului este de 551 mp (suprafata poate diferi usor in functie de configurarea terenului) - priveliste panoramica spre lac si munti - utilitati: apa si curent - sunt disponibile 3 parcele de teren, fiecare cu proiect autorizat pentru cabana moderna din lemn Detalii cabana : - design Asimetric Nordic, regim constructie parter + mansarda - suprafata de 111,35 mp desfasurati cu teresa inclusa, din care 100,38 mp utili - terasa cu suprafata de 13,60 mp - priveliste panoramica deosebita dinspre fiecare cabana - zona linistita, retrasa si ideala pentru o adevarata relaxare Compartimentare: - la parter living open space cu tavan inalt + bucatarie si loc de luat masa - 2 dormitoare, baie, hol, terasa - mansarda un dormitor cu suprafata de 30 mp La cerere se poate construi cabana conform proiectului autorizat. Fotografiile sunt reprezentarea a modului in care va arata cabana autorizata in proiect. COMISION 0%! Pentru mai multe detalii sau pentru programarea unei vizionari, va stam cu drag la dispozitie, Sorin Cont 0732008845 Echipa LIONAS Imobiliare!

